Oficina Técnica Integrada
Oficina Técnica Integrada (OTI) – Ingenieria Estrella
Juan Camilo Medina
Jorge Gutierrez
Anafran Henriquez
www.estrella.com.do
La Oficina Técnica Integrada de ESTRELLA es un estudio multidisciplinar que tiene por objetivo la construcción virtual de proyectos de edificación e infraestructura, con énfasis en los campos de arquitectura, estructura, MEP, urbanismo y paisajismo, a través de herramientas tecnológicas como el BIM Building Information Modeling que permite la integración de las disciplinas, optimizar los recursos y tiempos, evitar reprocesos y eficientizar costos y procedimientos en las fases de construcción.
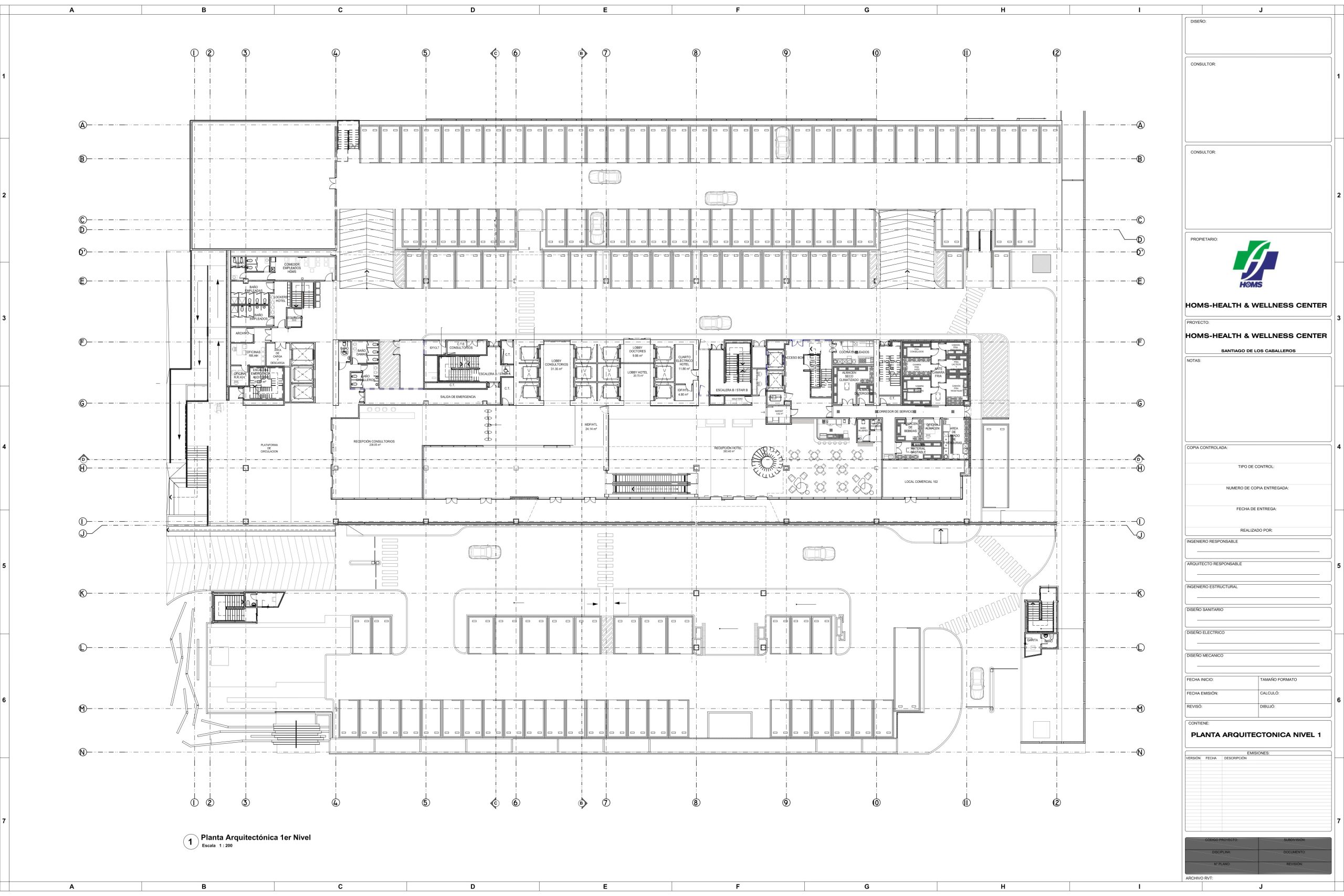
El Proyecto HOMS Health Wellness Center, HHWC, está ubicado en Santiago de los Caballeros contiguo al Hospital Metropolitano de Santiago, HOMS. Fue concebido como respuesta a la creciente demanda de servicios para el sector turismo de salud y busca atender a los pacientes extranjeros y locales que utilizan los servicios del hospital.
Este edificio fue diseñado con espacios flexibles que permiten la interacción de varios usos y a su vez funcionar de manera independiente. Cuenta con dos torres, una de consultorios médicos y otra de hotel, que incluye centro de convenciones, business center y áreas comerciales. El híbrido entre los usos contribuye con la idea inicial de generar espacios para fortalecer este tipo de turismo al integrar en un solo proyecto oferta hotelera y de negocios con servicios de salud y consulta como los que ofrece el HOMS.
La imagen del proyecto combina líneas sobrias y modernas que resaltan el contraste entre los diferentes materiales y sus texturas, logrando así una fusión orgánica entre los volúmenes y sus usos. La utilización de materiales como el panel prefabricado de concreto y fibra de vidrio, así como el muro cortina, refuerzan esta característica.
El proyecto contempla aproximadamente 52.000 m² construidos y distribuidos en dos torres, parqueaderos y un tercer volumen horizontal donde se alberga el centro de convenciones. La conexión entre el edificio existente HOMS y el nuevo HHWC se realizó en dos niveles, uno público y uno privado. El primero incluye una escalera urbana, una rampa peatonal y un ascensor para personas con movilidad reducida; el segundo incluye un puente peatonal de 52 metros de largo por cinco metros de ancho, ubicado en el cuarto piso.
En la torre sur, situada frente a la autopista, se encuentra el hotel que a través de un gran vestíbulo da acceso al centro de convenciones y al business center. La torre norte, por su parte, tiene un acceso independiente a través de un pre-lobby y un vestíbulo que permiten el ingreso al área de consulta médica.
Como parte del concepto de flexibilidad, el diseño contempla que tanto las habitaciones como los consultorios estén dentro de un módulo estructural de iguales proporciones, de manera que a futuro pueda ampliarse la oferta de consultorios o de habitaciones hoteleras de acuerdo con las necesidades del mercado.
El proyecto se desarrolló bajo los más altos parámetros internacionales tales como la seguridad (salidas de emergencia, sismorresistencia, entre otras) y las condiciones ambientales y de eficiencia energética consideradas en las fachadas, en los sistemas electromecánicos y en el uso de energías renovables.
El Hotel opera bajo la marca Marriott Residence Inn y tiene un modelo de servicio de larga estancia ideal para pacientes postoperatorios y/o acompañantes, ofreciendo habitaciones que permiten la estadía de hasta cuatro personas.
Por otro lado, la ubicación estratégica del centro de convenciones en el segundo nivel permite el acceso y tránsito fluido de personas desde el vestíbulo principal del hotel a través de las escaleras mecánicas y los seis ascensores. El auditorio atiende actividades médicas formativas y eventos sociales con un sistema de asientos retráctiles que permite albergar 400 personas sentadas o 500 de pie, según el requerimiento.
A su vez, el diseño paisajístico logra aprovechar las zonas verdes existentes y el desarrollo de nuevas áreas, proponiendo la utilización de plantas nativas y resistentes a las condiciones del lugar que complementan los espacios público-privados que se encuentran entre el primer nivel y la terraza mirador del piso 11.












